CC Crump Ltd - Manufacturers of Chemical Containment Units and Bromine vessels
  Leading manufacturers of specialised hazardous chemical transport equipment. :: E-mail::  
Drums

Originally developed as UN performance tested packaging meeting the 1993 requirements of ADR for the transport of Bromine, our drums have since been reappraised as conforming to the current IMDG/ADR requirements of Packing Instruction P601 and P602.

An accumulation of 12 years continuous development our drums are used and trusted by world leading bromine producers and pharmaceutical companies and are available in 83-140 litre capacities.

Bromine Drums for the safe transportation of bromine
Bromine Drums aas used by leading pharmaceutical manufacturers 82-140 Litre Drums
UN IAI/X3.2/1000/**/GB/2532
Operating Pressure: 2.5 Barg Max.
Hydraulic Test Pressure: 10 Barg
Max. Gross Mass: 800 kg
Design Code: ASME VIII
Shell: Steel
BS1501-224-490B LT50
Lining: 4mm Lead BS334 Chemical
Type A or B or 5mm PVDF
either standard or high purity
grade.
Valves: DN20 or DN25 lined
diaphragm or ball valves
Colour Coded: Yellow = Filling/Discharge
Red = Vent Valve
Green = Pressurising Valve (Optional)
Gaskets: 3mm thick Modified PTFE
Dip Pipes: Flange - 60 OD x 25thk PVDF
Filling/Discharge - 3/4"NB Sch80 PVDF pipe
Ullage - 25mm OD x 1.9 wall PVDF pipe (if fitted)
(Click to enlarge)
Bromine drum depicting valves
Vessel
Type
Vessel
Capacity
Bromine
Capacity
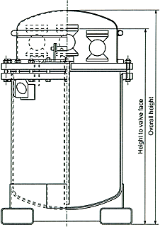
Overall
Height
Height to
Valve Face
Est Tare
Lead Lined
Est Tare
PVDF Lined
11/12 140 ltrs 400kg 1057 960 mm 342 kg 265 kg
13/14 125 ltrs 360kg 989 mm 892 mm 330 kg 240 kg
15/16 110 ltrs 300 kg 920 mm 823 mm 318 kg 235 kg
17/18 82 ltrs 240 kg 791 mm 694 mm 302 kg 215 kg
Vessel Type: Odd numbers lead lined, even numbers PVDF lined
   
Homepage Drums